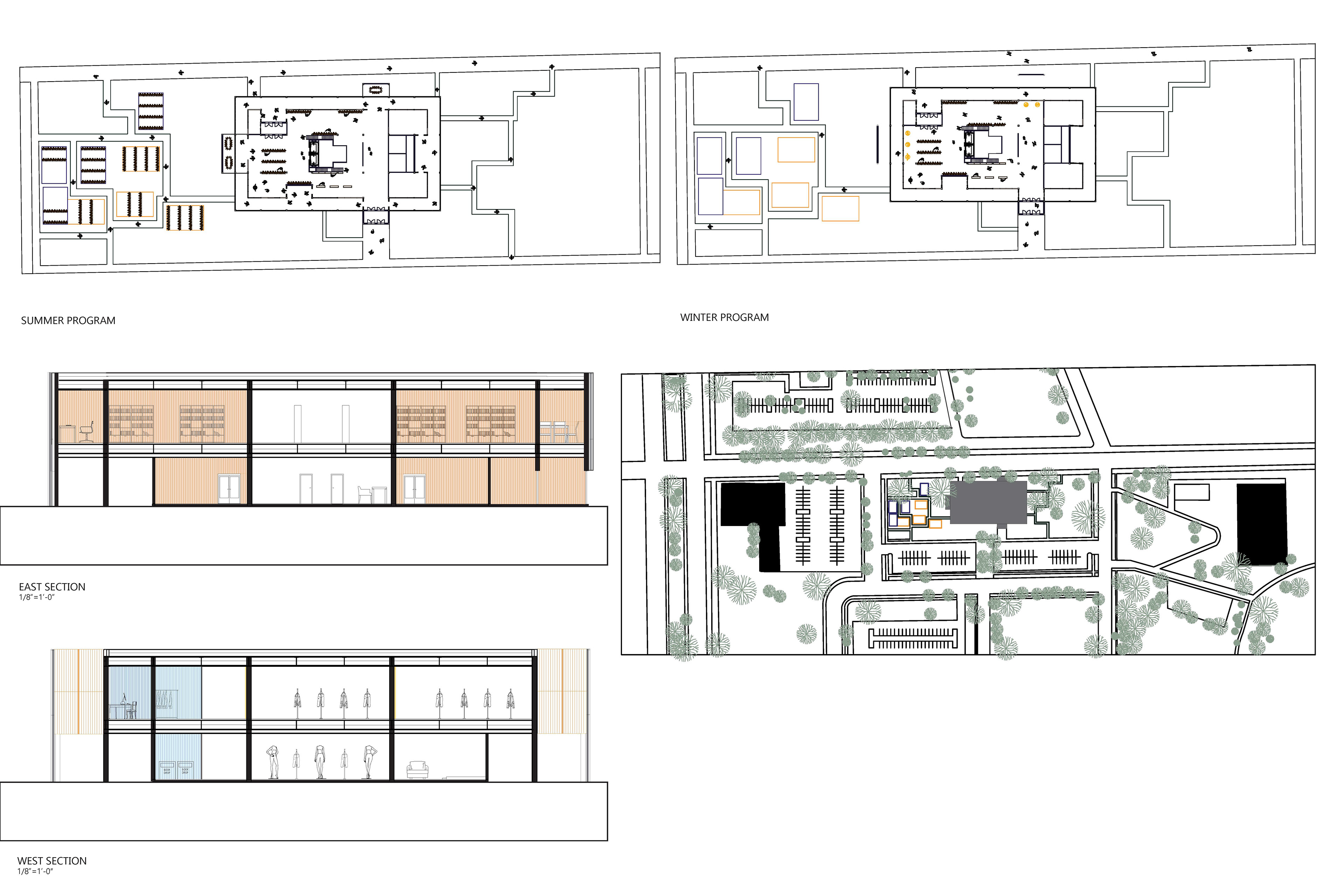
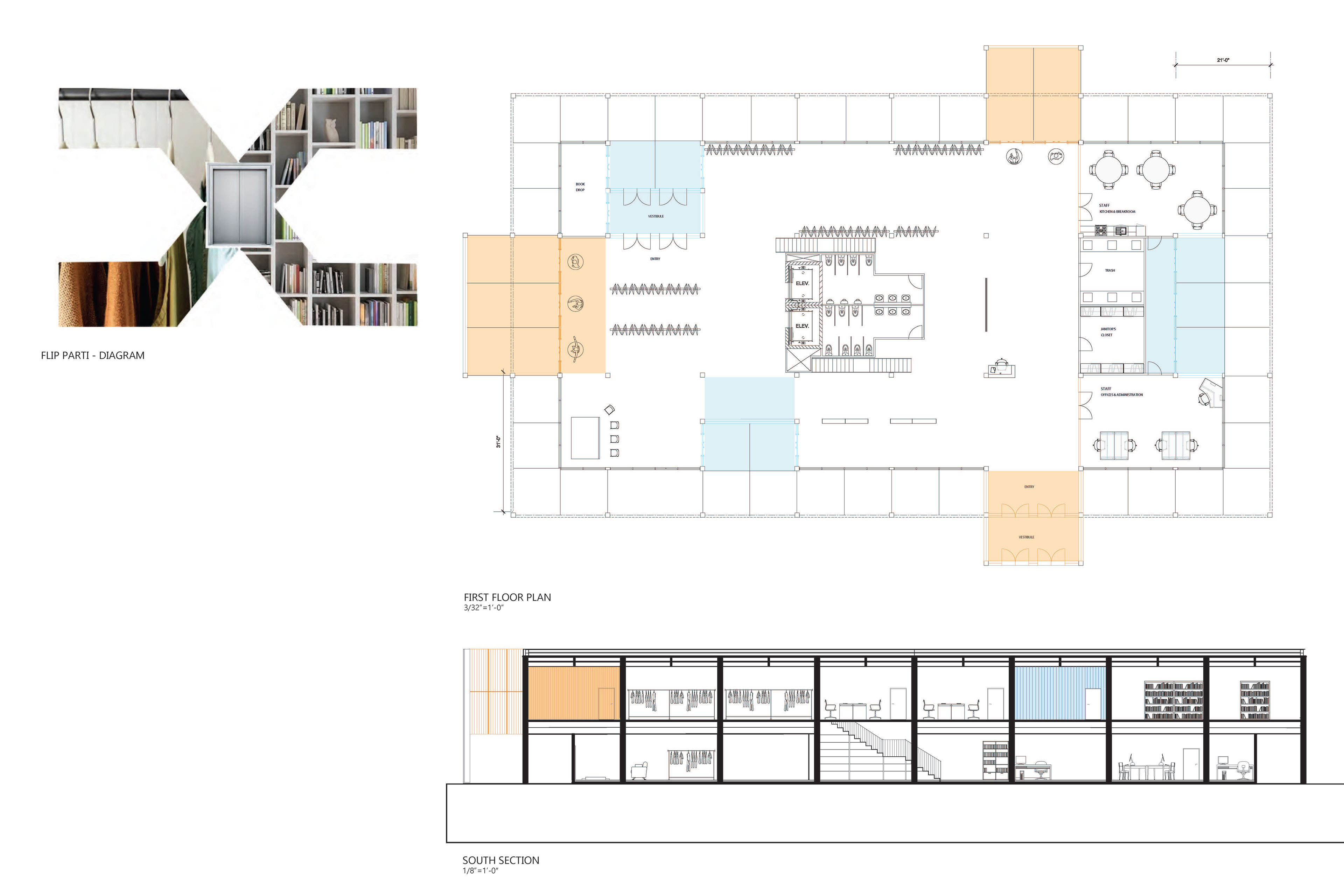
Lake Meadows: A Thrift Collection
This project was problem-solving based; relying heavily on what we might add to our community based on our surroundings. The thrift collection was designed to be a community-oriented space where goers can find affordable and environmentally friendly of options of clothing or books.